Skip links

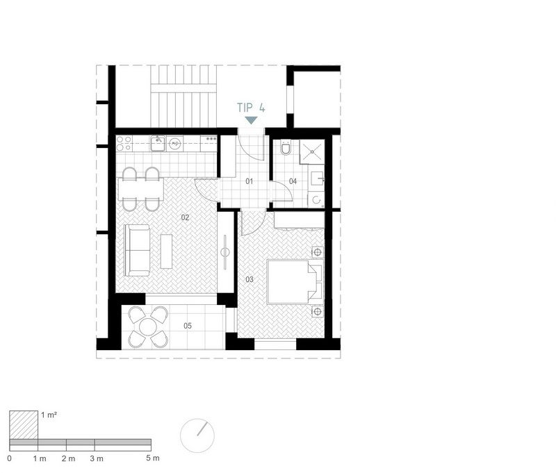
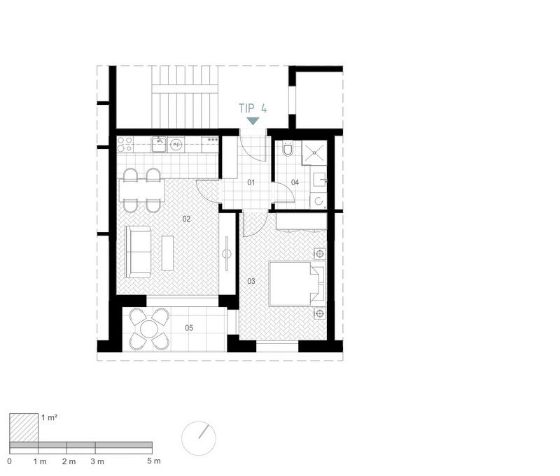
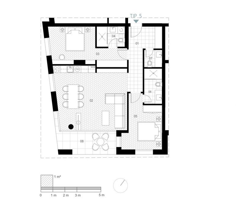
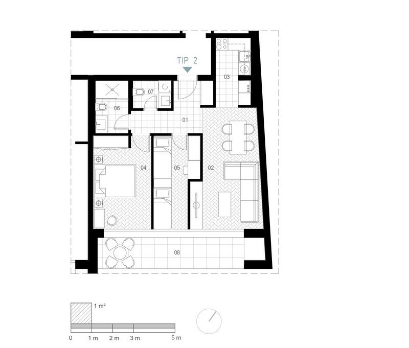
Ponuda stanova

Dostupni stanovi

Rezervisani stanovi

Pogledaj
Drag